O様邸 本体:ポリエステル樹脂化粧合板貼りフラッシュ 扉 :ポリエステル樹脂化粧合板貼りフラッシュ ※扉の一部サランネット貼り(スピーカー部)

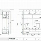
寸法:幅1780×奥行450×高さ2200 テレビ台+収納+プリンター収納です。 寝室側に家具を設置し、引戸(写真にありませんが)で 隠れるオーダー家具です。引戸は4枚で両側に開けると 家具が現れるというのです。68インチから70インチTV 設置の為にオーダーしていただいた、こだわりの家具です。 ブルーレイ、DVD、アンプ、ウーハーがテレビ設置側に 収納され、裏側はプリンターが収納されます。 難しかったのは配線です。どのような配線ルートを確保 すれば綺麗に見えるかが課題でした。 何度も打合せを重ねお作りいたしました。 今回はありがとうございました! |